art³

Afghanisches Gemeindehaus in Berlin Nord

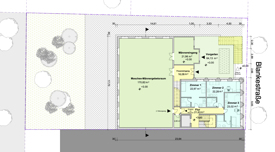
Das neue geplante afghanisches Gemeindehaus in Berlin Nord ist für soziale, kommerzielle und kulturelle Nutzung geplant. Auf dem ca. 1000m² großen Grundstück soll in geschlossener Bauweise ein vierstöckiges Gebäude mit Dachterrassen errichtet werden, das etwa 1400 m² Nutzfläche bietet. Die Nutzbereiche wie ein Hotel, eine Moschee auf zwei Ebenen mit Vorgarten und eine Mehrzweckhalle in zwei Ebenen sind für ca. 400 Besucher geplant.

Jahre

2024

Standort

Afghanisches Gemeindehaus in Berlin Nord

Projekttyp und Leistungen

Kulturelle, religiöse und gewerbliche Gebäude

Teilen

Dipl.-Ing Architekt
Hamza Yılmaz