art³

Uferhotel - Restaurant Fährstation

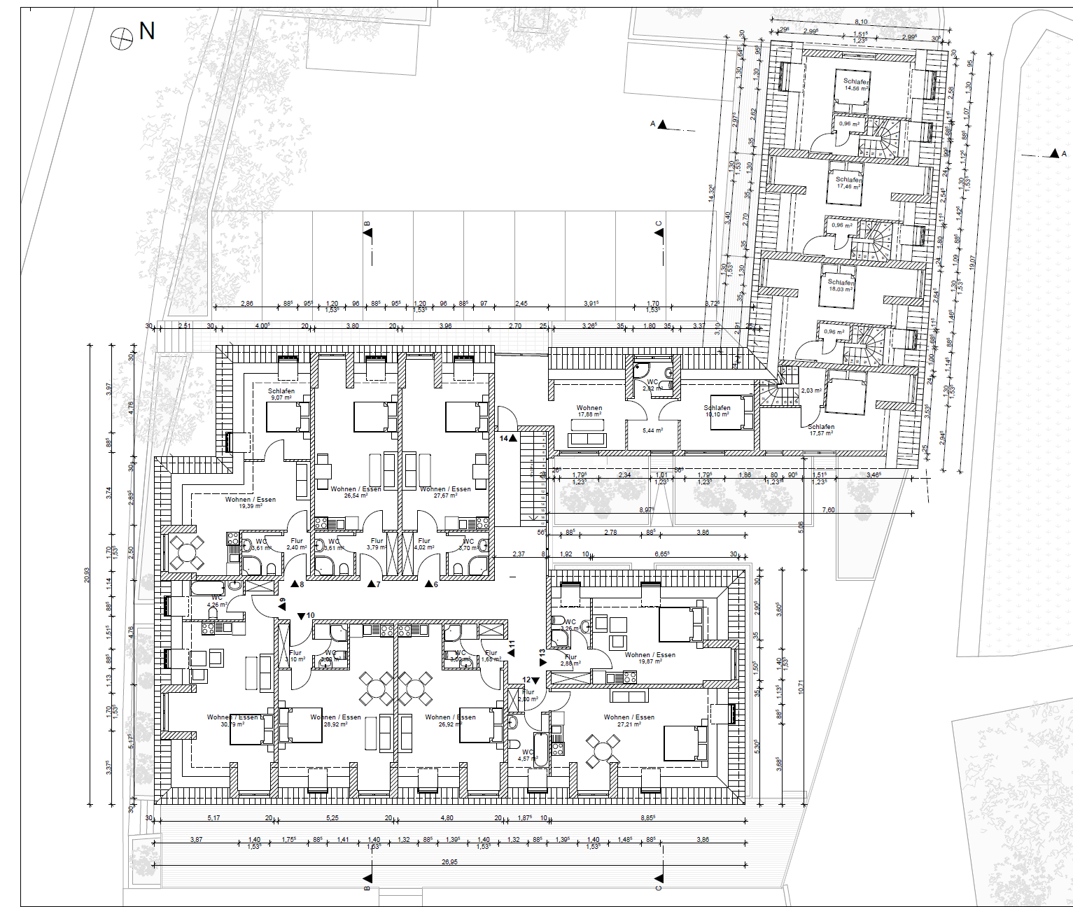
Am Havelufer gelegen „Das Fährhaus“ in Hakenfelde ist ein Markenzeichen von Bezirk Spandau. Der eingeschossige Altbau wurde bis auf KG Decke abgerissen und ein Hotel-Restaurant mit See-Terrassen neu errichtet. Es wurden Insgesamt 21 Appartements und ein Restaurant geplant und errichtet. Außenanlagen mit Seeterrassen, Stellplätze und Bootliegeplätze wurden geplant und umgesetzt.

Jahre

2016-2021

Standort

Aalemannufer 31 , 13587 Spandau

Projekttyp und Leistungen

Hotel, Restaurant | Umbau, Aufstockung und Neubau

Teilen

Dipl.-Ing Architekt
Hamza Yılmaz